1. Home
  2. Search Listings
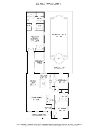
  3. 205 Greymon Drive West Palm Beach, FL - 33405
  • MLS® #: RX-11139490
  • 205 Greymon Drive
  • West Palm Beach, FL 33405
  • $2,195,000
  • 3 Beds, 2 Bath, 1,703 SqFt
  • Residential

Completely renovated, redesigned and enlarged, this circa 1958 cottage in the Prospect/Southland Park historic district is like-new. With a 2025 new CBS primary suite addition, this once small home now lives large with 3 bedrooms, 2 bathrooms and a charming laundry room. Boasting an eat-in kitchen, pantry, laundry/ utility room, heated swimming pool with spa and covered pergola, mature clusia hedging, this home is perfect for entertaining or simply relaxing solo at home. Highlighting Miele kitchen appliances, Schumacher wallpaper, European white oak engineered wood floors throughout, PGT hurricane impact rated windows and sliding glass doors, new electrical and plumbing to the street and Ring doorbell plus cameras, no stone left unturned in this (new) turnkey charming 1958/2025renovated home. In the Palm Beach Public Elementary school district, close to area beaches, Flagler Drive bike trail, Worth Avenue shopping, five-star dining, I-95, PBI airport and much more! This property received its Certificate of Completion on December 3, 2025. The City of West Palm Beach Historic Preservation Board voted to approve the owner's request for an Ad Valorem Property Tax Exemption on December 9, 2025, and the matter is scheduled to go before the City of West Palm Beach City Committee on January 5, 2026. The Ad Valorem Tax Exemption will result in significant property tax savings for a period of 10 years (through December 31, 2035).

View Virtual Tour

Essential Information

  • MLS® #RX-11139490
  • Price$2,195,000
  • CAD Dollar$3,047,977
  • UK Pound£1,639,189
  • Euro€1,890,246
  • HOA Fees0.00
  • Bedrooms3
  • Bathrooms2.00
  • Full Baths2
  • Square Footage1,703
  • Year Built1958
  • TypeResidential
  • Sub-TypeSingle Family Detached
  • RestrictionsNone
  • StyleRanch
  • StatusActive
  • HOPANo Hopa

Community Information

  • Address205 Greymon Drive
  • Area5440
  • SubdivisionSOUTHLAND PARK
  • CityWest Palm Beach
  • CountyPalm Beach
  • StateFL
  • Zip Code33405

Amenities

  • AmenitiesSidewalks
  • Utilities3-Phase Electric
  • ParkingDriveway
  • ViewPool
  • WaterfrontNone
  • Has PoolYes
  • PoolHeated, Inground, Spa
  • Pets AllowedYes

Interior

  • HeatingCentral, Zoned
  • CoolingCentral, Zoned
  • # of Stories1
  • Stories1.00

Interior Features

Entry Lvl Lvng Area, Walk-in Closet

Appliances

Dishwasher, Disposal, Dryer, Freezer, Ice Maker, Microwave, Washer, Range - Gas

Exterior

  • Exterior FeaturesAuto Sprinkler
  • Lot Description< 1/4 Acre
  • WindowsImpact Glass
  • ConstructionCBS, Brick
  • Office: Brown Harris Stevens Of Pb

Property Location

Please provide a valid email address.

205 Greymon Drive on www.pbggolf.com

Offered at the current list price of $2,195,000, this home for sale at 205 Greymon Drive features 3 bedrooms and 2 bathrooms. This real estate listing is located in SOUTHLAND PARK of West Palm Beach, FL 33405 and is approximately 1,703 square feet. 205 Greymon Drive is listed under the MLS ID of RX-11139490 and has been available through www.pbggolf.com for the West Palm Beach real estate market for 66 days.

Facts About West Palm Beach, FL

One of West Palm Beach's favorite venues for a cold drink and some nice South Florida relaxation is E.R. Bradley's Saloon. This open air restaurant is a frequent stop for both locals and tourists.

West Palm Beach is home to the Bel Air Historic District. It was built in the 20s and 30s and boast some of Palm Beach's most beautiful and historic architecture.

West Palm Beach is home to many festivals and events. They are often hosted at Currie Park which is a scenic family friendly park located on West Palm Beache's Intracoastal Waterway.

Similar Listings to 205 Greymon Drive

Photo of Listing #RX-11088720
  • MLS® #: RX-11088720
  • 328 Monroe Drive
  • West Palm Beach, FL 33405
  • $2,295,000
  • 4 Bed, 4 Bath, 3,065 SqFt
  • Residential
Add as Favorite
Photo of Listing #RX-11038409
  • MLS® #: RX-11038409
  • 240 Almeria Road
  • West Palm Beach, FL 33405
  • $1,999,000
  • 3 Bed, 3 Bath, 1,092 SqFt
  • Residential
Add as Favorite
Photo of Listing #RX-11109344
  • MLS® #: RX-11109344
  • 230 Santa Lucia Drive
  • West Palm Beach, FL 33405
  • $1,999,000
  • 3 Bed, 3 Bath, 1,381 SqFt
  • Residential
Add as Favorite
Photo of Listing #RX-11124233
  • MLS® #: RX-11124233
  • 3308 Washington Road
  • West Palm Beach, FL 33405
  • $2,295,000
  • 2 Bed, 2 Bath, 1,534 SqFt
  • Residential
Add as Favorite

All listings featuring the BMLS logo are provided by Beaches MLS Inc. Copyright 2026 Beaches MLS. This information is not verified for authenticity or accuracy and is not guaranteed.
© 2026 Beaches Multiple Listing Service, Inc. All rights reserved.

Listing information last updated on January 16th, 2026 at 5:46am CST.